Scenic Design
Design Statement
Men on Boats tells the story of John Wesley Powell’s 1869 expedition throughout the Colorado River and it’s canyons... from the perspective of those unable to experienced it.
With a cast consisting of female, trans and poc identities, Men on Boats gives those who have been silenced throughout history a chance to step into the shoes of their oppressors. This lends not only to a new perspective on the frontier, but humanizes these individuals as they experience the joys and horrors around them.
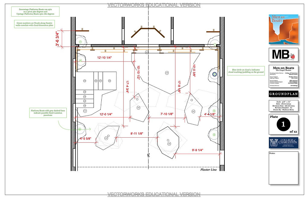
For my design, I wanted to capture the grandeur of the space within an abstraction showcasing this changing perspective. The character’s idealization of the frontier drew me towards ideas of a more graphic style similar to that of an old postcard. While there is joy, there is true danger afoot. This led me to explore the use of line in my design. I found simplifying the environment down to geometric shapes merged the these two ideas. This allowed a limited space and a single set to change in front of an audience eyes. Using a system of locking pivots, stationary landmasses could shift into the bow of a boat spinning against a current. I also worked closely with my lighting designer to integrate light to change the set. Lines could be highlighted or softened throughout the show to create a welcoming environment capable of deadly circumstances.
Image Research





Sketches






Final Rendering

Drafting



Paint Elevations




physical models



Process Photos















End Result





